Чердачная лестница Fakro LWS Plus 600*940*2800 в Барнауле
Данная лестница выводится из ассортимента
Наличие уточняйте у менеджеров








Общие параметры
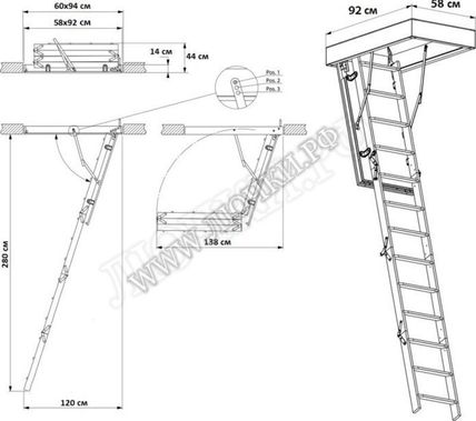
До: 2800 мм
Размеры
Минимальное расстояние до стены: 1380 мм;
Глубина короба: 140 мм
Длина: 940 мм
Длина: 940 мм;
Глубина: 370 мм
Глубина: 80 мм
Погрешность при производстве может составлять +- 2 мм.
Производитель на свое усмотрение и без дополнительных уведомлений может менять комплектацию, внешний вид и технические характеристики модели.
В Вашем случае однозначно нужна чердачная лестница с максимально утепленной крышкой!
Чтобы учесть все нюансы и не ошибиться с выбором типа и размера чердачной лестницы, позвоните по тел.+7 (800) 775-25-37, мы Вас полноценно проконсультируем
Чтобы оформить доставку, сначала нужно оформить заказ на чердачную лестницу.
Вы можете оформить заказ самостоятельно на сайте, после оформления менеджер с Вами свяжется для уточнения и подтверждения всех деталей.
Либо можете позвонить на номер +7 (800) 775-25-37 и получить консультацию и сразу оформить заказ с менеджером, либо можно написать о своем желании оформить заказ в почту mail@luchki.ru, опять таки менеджер с Вами свяжется.
Данные указаны в таблице во вложении. Упакована лестница в плотный полиэтилен, снизу проложен лист двп, защищающий крышку.
Интересует глубина.
Размеры ступени: Ширина 8см, Длина 34см, Толщина 2 см.
Расстояние между ступенями 25см.
Убирать последнюю секцию полностью нельзя.
В Вашем случае нужно будет подрезать не только последнюю секцию, но и вторую, тоже.
Если у Вас есть возможность подъехать к нам в офис, то мы могли бы продемонстрировать Вам это на стендах вживую.
Лестница с производства приходит в пенополистироле, поэтому габаритные размеры не меняются и составляют 600*1200*40мм. При отправке через транспортные компании по желанию клиента груз дополнительно упаковывается в жесткую обрешетку - это деревянный короб, размеры которого превышают сам товар в среднем на 2 см.
Нет, у данной лестницы крышка не утепленная.
Если Вам необходимо утепление, то рекомендуем рассмотреть модели: FAKRO LWT Super Thermo; FAKRO LTK Thermo; Oman Nozycowe Termo Grey; Oman Polar. В действительности моделей с данным параметром больше перечисленного. Чтобы посмотреть их все - можете воспользоваться фильтром "Особенности" -> "Утепленный люк" в левом боковом меню. Также можете отправить заявку на звонок, мы перезвоним Вам для более подробной консультации, либо связаться с нами самостоятельно по номерам, указанным в шапке сайта.
Услуги замера и монтажа временно не предоставляются
Приносим извинения за возможные неудобства
Стоимость работ по монтажу
| Стоимость работ по монтажу люков | ||||
|---|---|---|---|---|
| Модель | Стоимость работ | Стоимость материала для монтажа | ||
| Напольный | ||||
| Съемный | от 8000 | от 2000 | ||
| На петле | ||||
| Настенный | ||||
| Металлический сантехнический размеры от 200 до 500мм | от 500 | от 200 | ||
| Металлический сантехнический размеры от 500 до 1000мм | от 1000 | от 500 | ||
| Под плитку размеры от 200 до 500 мм | от 2500 | от 500 | ||
| Под плитку размеры от 500 до 1000 мм | от 3500 | от 1000 | ||
| Под покраску размеры от 200 до 500 мм | от 2500 | от 500 | ||
| Под покраску размеры от 500 до 1000 мм | от 3500 | от 1000 | ||
| Потолочный | ||||
| Под покраску от 200 до 500 мм | от 2500 | от 500 | ||
| Под покраску от 500 до 1000 мм | от 3000 | от 1000 | ||
| Стоимость работ по установке чердачных лестниц | ||||
| Тип работ | Стоимость работ | |||
| Деревянные чердачные лестницы, установка в готовый проем | 5000 ₽ | |||
| Металлические чердачные лестницы, установка в готовый проем | 7500 ₽ | |||
| Подготовка проема под установку лестнице (в зависимости от сложности работ, кроме бетонных проемов) | от 2000 до 5000 ₽ | |||
| Подготовка проема в бетонном перекрытии | от 5000 | |||
| Стоимость услуг по установке окон-люков | ||||
| Тип работ | Стоимость работ | |||
| Установка окон-люков в готовый проем без подведения кровельного покрытия | 5000 ₽ | |||
| Установка окон-люков в готовый проем без подведения кровельного покрытия с переносом стропильной системы | 8000 ₽ | |||
| Установка окон-люков в готовый кровельный пирог (Битумная, натуральная, металлочерепица) | 10000 ₽ | |||
| Установка окон-люков в готовый кровельный пирог с переносом стропильной системы (Битумная, натуральная, металлочерепица) | 13000 ₽ | |||
| Установка окон-люков в фальцевую кровлю (Клик фальц, двойной стоящий фальц, оцинковка и т.п.) | от 18000 ₽ | |||
В стоимость работ не входит:
- Укладка плитки;
- Шпатлевка;
- Подготовка проема;
- Укрепление проема;
- Утепление люка.
ВНИМАНИЕ! Дополнение по установке и замеру чердачных лестниц: Выезд на замер осуществляется платно, до первого малого бетонного кольца 1 500 ₽, от малого и далее по Московской области 2 000 ₽.
* Стоимость монтажа и установочных работ может отличаться от прайса. Подробную информацию уточняйте у менеджеров магазина.
* Расходный материал при установке чердачных лестниц в стоимость монтажа не входит и расчитывается индивидуально.








+7 (977) 090-10-90





















































































































































































